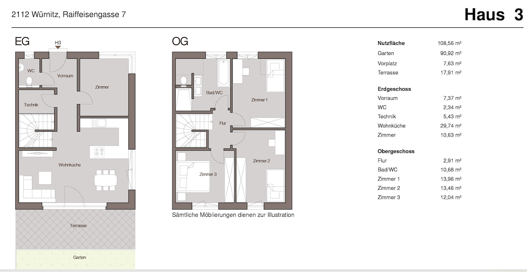
Haus 3
Gartenhaus mit großem Außenbereich
Komfortables Gartenhaus mit fünf Zimmern, großzügigem Garten und optimaler Grundrissgestaltung im Projekt Würnitz.




Fordern Sie
jetzt Ihr Exposé an
Im Exposé erhalten Sie alle wichtigen Informationen zu Ihrer neuen Wohnmöglichkeit. Auf Wunsch vereinbaren wir gerne ein persönliches Beratungsgespräch, um Ihre individuellen Fragen zu klären.




